02.859.4080
송파위례지구의 소식을 알아보세요.
운영자 / 2021-11-17 / 483 hit
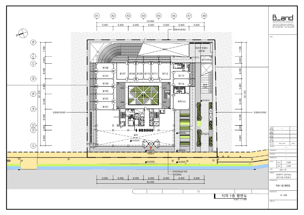
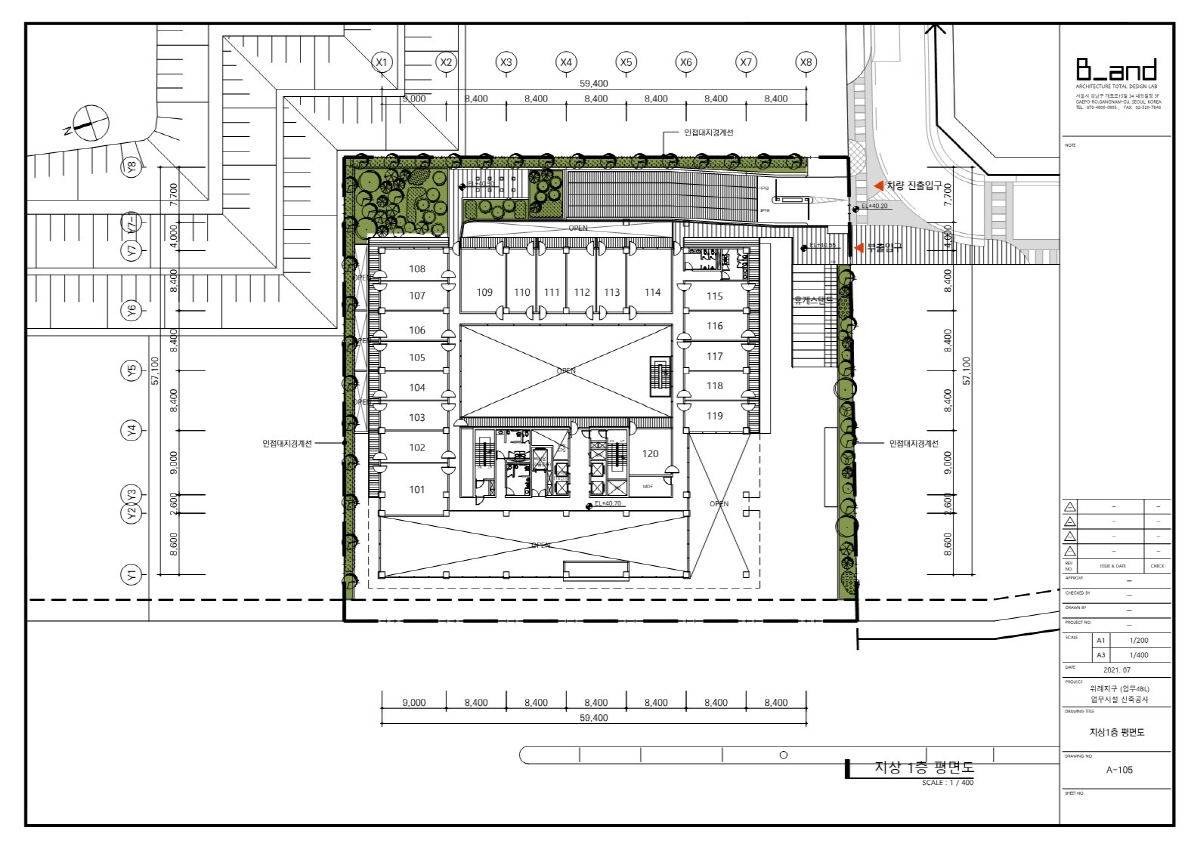
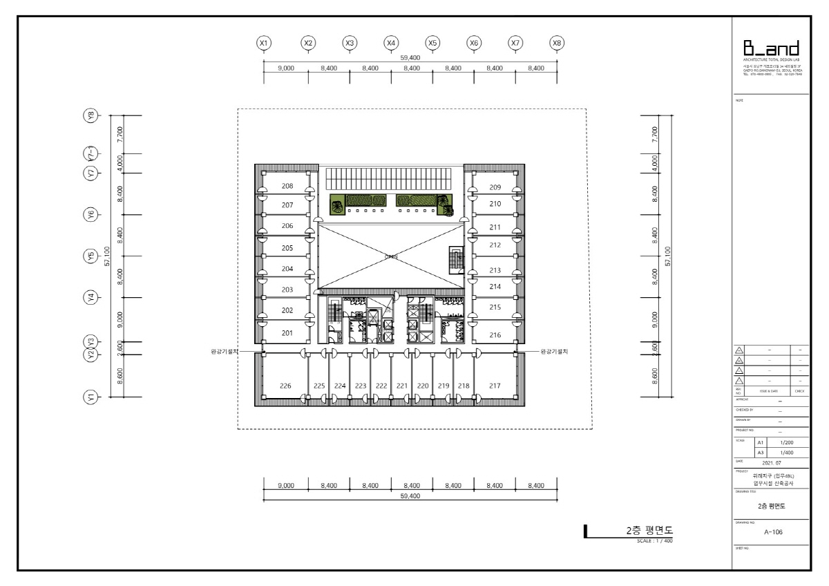
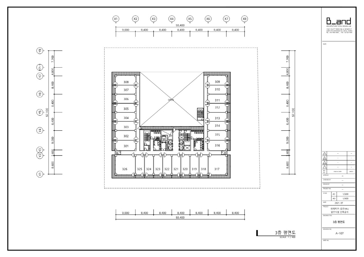
* 송파 위례업무시설 최종 확정된 도면입니다.
* 유원플러스 송파 로비층 입니다. 특징은 입주전 전용 휘트니스 클럽이 있고 화장실이 2개소 입니다.
* 외부인 입출입통제 시스템이 설치되어 있습니다. < 근린생활 시설은 없습니다 > 법무사.회계사,세무서 많이 입주하시겠네요.

* 1호,6호 전용13평 / 2호~5호 전용12평 / 7호,12호 전용17평 / 8호~11호 전용11평 / 13호,14호 전용 11평 입니다.

* 1호 전용21평 / 2호,8호 전용13평 / 3호~7호 전용12평 / 9호,14호 전용17평 / 10호~13호 전용11평
* 16호~18호 전용11평 / 19호,20호 전용12평 입니다.

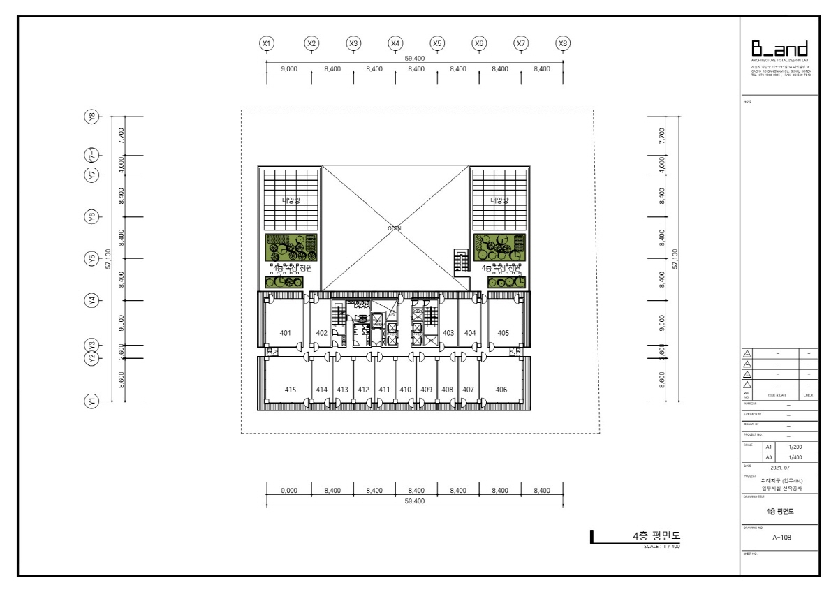
* 1호,2호,8호 전용13평 / 3호~7호 전용12평 / 9호,15호 전용12평 / 16호 전용13평 / 10호~14호 전용11평
* 17호 전용24평 / 18호~25호 전용11평 / 26호 전용26평 입니다..

* 1호,2호,8호 전용13평 / 3호~7호 전용12평 / 9호,15호 전용12평 / 16호 전용13평 / 10호~14호 전용11평
* 17호 전용24평 / 18호~25호 전용11평 / 26호 전용 26평 입니다.

* 1호 전용22평 / 2호 전용12평 / 3호 전용11평 / 4호 전용13평 / 5호 전용20평
* 6호 전용24평 / 7호~14호 전용11평 / 15호 전용26평 입니다.

* 1호 전용27평 / 2호 전용11평 / 3호 전용11평 / 4호 전용12평 / 5호 전용25평
* 6호 전용24평 / 7호~14호 전용11평 / 15호 전용26평 입니다.

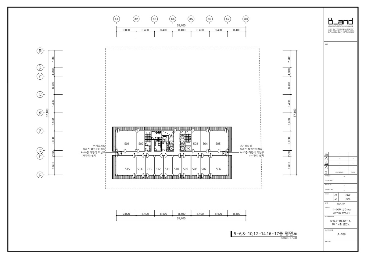
* 1호 전용27평 / 2호 전용11평 / 3호 전용14평 / 4호 전용25평
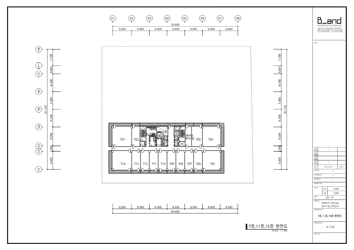
* 5호 전용24평 / 6호~13호 전용11평 / 14호 전용26평 입니다. < 7층,11층,15층에는 공용 휴게실,편의시설이 있습니다. >

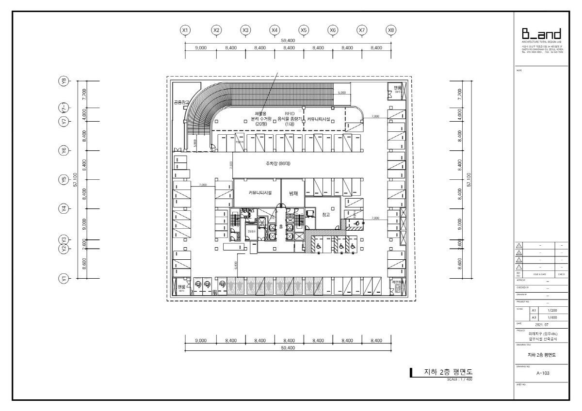
* 지하2층에는 입주자전용 커뮤니티 시설이 있습니다. < 회의실. 휴게실,미팅룸.접견실 등등이 설치예정 입니다 >

|